East Lake, Atlanta, GA
Challenge: A growing family of 5 looking to convert a toy room into a functional space blending a designed and comfortable space for adult interation with the playfullness of a play room.
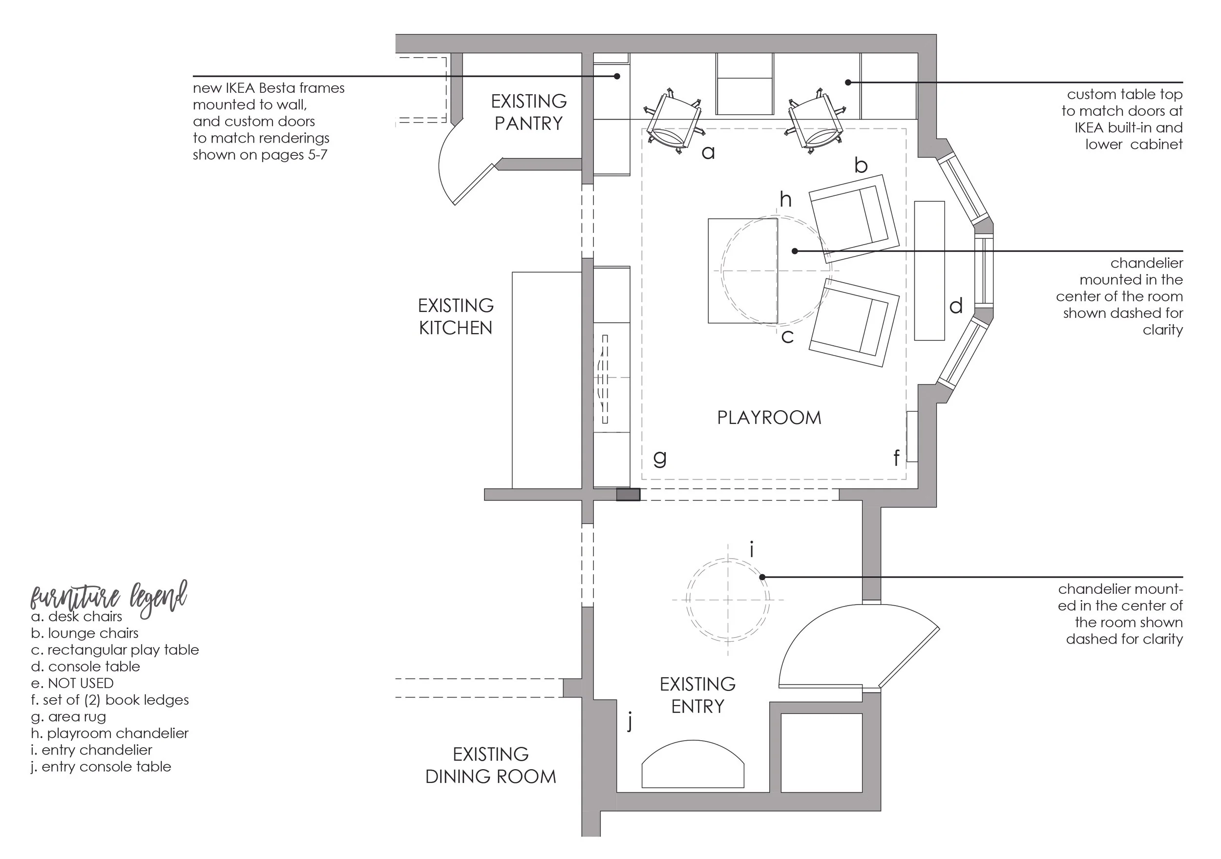
Existing Conditions: 300 sf Den/Office room off the entrance with direct access to the kitchen.
Solution: A modern custom built-in design, allows for space to store and organize toys, crafting supplies, etc. The L-shaped design accomodates dual desk stations, floor to ceiling cabinetry and TV display. While keeping the color palette light and sophisticated, we created intentional opportunities for colorful splashes to co-exist in this space suitable for adult entertaining and kid-friendly interactions.
Durham, NC
Challenge: A family relocating from NYC and moving into their new house want to furnish the home with elements that bring both of their cultures and styles together while making it a kid-friendly space for their toddler.
Existing Conditions: 2,500 sf single family home
Solution: A neutral color palette of natural inspired finishes with terracotta pops. The furniture lines are minimal and timeless with warm wood and metal finishes. The artwork throughout is meaning full to the family honoring their heritage.
Raleigh, NC
Challenge: A family relocating from the west coast and moving into their new house want to furnish the home with elements that work well with previously owned pieces staying within a modern and clean aesthetic.
Existing Conditions: 2,900 sf single family home
Solution: A neutral color palette with a variety of contrasting and dramatic shades. The furniture selections complement the mid-century existing pieces well while the accessories introduce a subtle variety of natural tones.
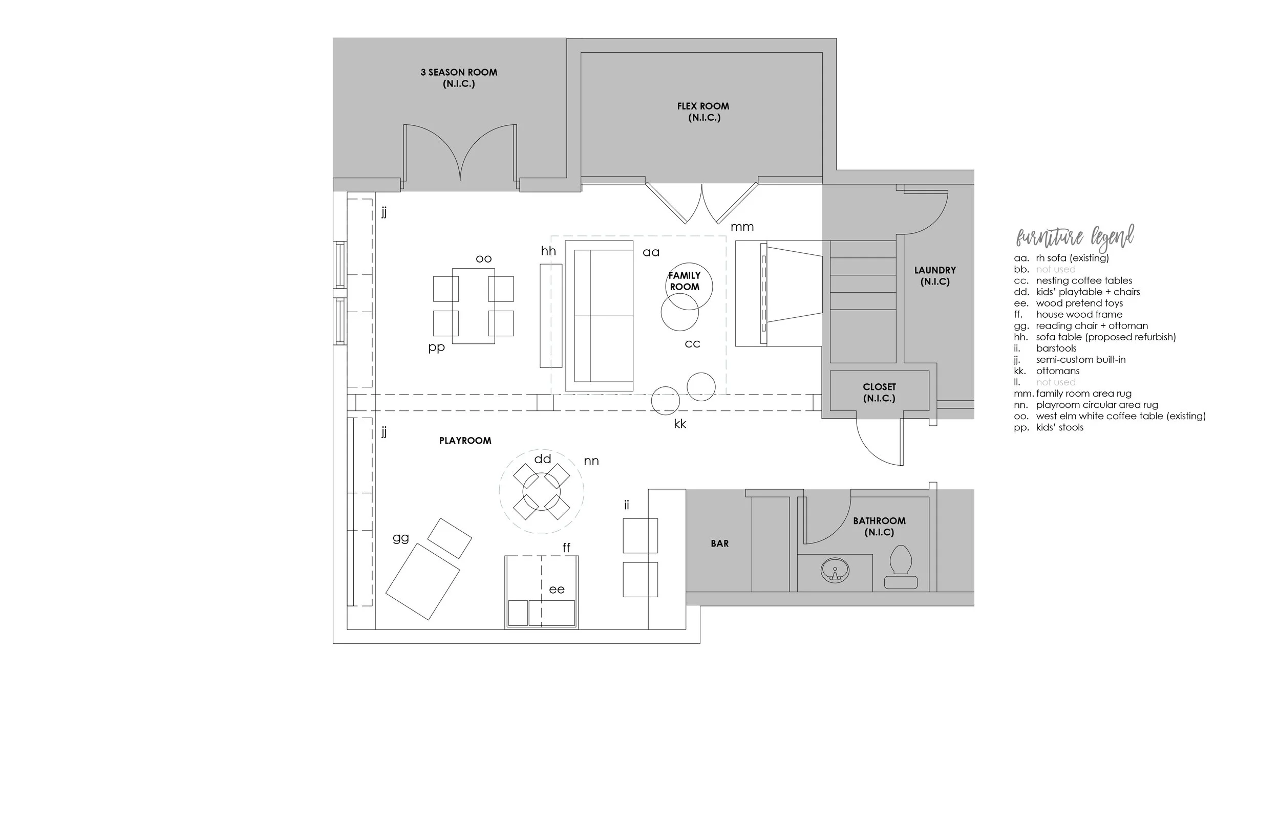
Issaquah, WA
Elmhurst, IL
Cle Elum, WA
San Mateo, CA
Challenge: A growing family wants to create a fun room for their two younger boys, while converting the other room into a nursery/guest room/office
Existing Conditions: (2) bedrooms, 400 sf total
Solution: The proposal implements bunk beds for the boys allowing for ample space to play. Along one wall, a ladder style desk and opposite to that a dresser adding more storage space to a smaller closet. At the nursery, a built-in murphy bed hides along one of the walls while a smaller desk is located by the window for natural light. This set up allows for a crib, changing station and rocking chair. Both rooms have an overall neutral palette, with the boys’ room having a playful wallcovering, bedding and lighting.
Wakefield, MI